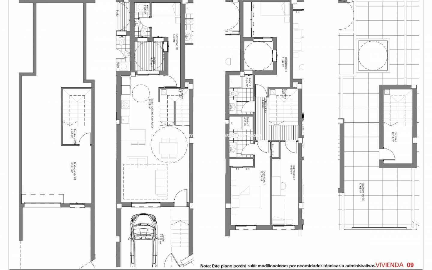
Entdecken Sie diese unglaublichen Stadthäuser im Bau in Catral! Diese Häuser zeichnen sich durch ein modernes, hochwertiges Design aus und bieten zwischen 179 und 258 m² sorgfältig gestaltete Räume, die auf Komfort und Stil ausgelegt sind.
Jedes Haus verfügt über einen Keller, ein Erdgeschoss und einen ersten Stock sowie ein schönes Solarium mit fantastischer Aussicht. Ideal, um die Sonne zu genießen, zu entspannen oder einen einzigartigen Außenbereich zu schaffen.
Mit drei geräumigen Schlafzimmern sind diese Häuser ideal für Familien, die eine funktionale und stilvolle Unterkunft suchen. Die hochwertige Verarbeitung garantiert Langlebigkeit und makellose Verarbeitung bis ins kleinste Detail.
Diese Häuser liegen in der Nähe aller Annehmlichkeiten und sind leicht erreichbar. Sie können den Komfort genießen, in einer leicht zugänglichen Nachbarschaft zu leben, mit Supermärkten, Geschäften, Restaurants und Annehmlichkeiten in unmittelbarer Nähe.
Eine ideale Gelegenheit, ein modernes, hochwertiges Haus mit spektakulärer Aussicht und bester Lage zu erwerben. Wünschen Sie weitere Informationen oder möchten Sie wissen, wann die Immobilie besichtigt werden kann? Wir helfen Ihnen gerne weiter!
Diese hier angegebenen Informationen unterliegen Fehlern und sind nicht Bestandteil eines Vertrages. Das Angebot kann ohne vorherige Ankündigung geändert oder zurückgezogen werden. Die Preise beinhalten keine Einkaufskosten.
Amsterdam, 1
La Marina Urbanization
03177 San Fulgencio
Alicante (Spain)
Öffnungszeiten
Montag bis Freitag, von 9:00 bis 18:00 Uhr
© 2026 Real Estate · Rechtlicher Hinweis · Privatsphäre · Cookies · Web-Karte
Entwurf: Mediaelx
Zunächst einmal, vielen Dank für Ihre Kontaktaufnahme.
Wir haben Ihre Anfrage bezüglich des Eigentumsverweises erhalten:SP4671-9. Einer unserer Mitarbeiter wird sich so schnell wie möglich mit Ihnen in Verbindung setzen.
Zunächst einmal, vielen Dank für Ihre Kontaktaufnahme.
Wir haben eine Anfrage für einen Bericht erhalten, wenn Sie den Preis der Immobilie mit der Referenz senken: SP4671-9
In der Zwischenzeit sehen Sie sich bitte diese Auswahl ähnlicher Objekte an, die für Sie von Interesse sein könnten:
Finden Sie Ihr Traumhaus, indem Sie Ihre Immobilien speichern und Benachrichtigungen über neue verfügbare Immobilien erhalten.